Обяви За нас Контакти
Продава 2-СТАЕН
област Варна, гр. Бяла
70 000 €
136 908.10 лв.

(1 000 €, 1 955.83 лв./m2)
Не се начислява ДДС
История на цената
Публикувана в 14:38 на 31 март, 2026 год.
Обявата е посетена 37 пъти.
Площ:
70 m2
Етаж:
2-ри от 5
Строителство:
Тухла, Ще бъде въведен в експлоатация 2027 г.

Описание на имота:


АТРАКТИВНИ ЦЕНИ!!! ПОДПИСАН АКТ14! ЗАВЪРШВАНЕ ДО КЛЮЧ! ИЗБОР НА ПАРКОМЯСТО! ГЪВКАВИ СХЕМИ НА ПЛАЩАНЕ!

СМЕНИ АДРЕСА предлага да станете собственик на просторен двустаен апартамент в сгара 'Ново строителство' на прекрасно място в гр. Бяла!

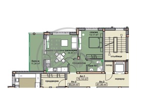
Жилището е ситуирано на втори реален етаж с обща площ 70 кв.м и се състои от входно антре, дневен тракт с кухня и трапезария с площ 24.50 кв.м с излаз на широка тераса, спалня (13 кв.м) и комбиниран санитарен възел. Апартаментът се издава се по БДС, но може да бъде завършен до ключ! Избор от външни паркоместа. Към жилището има прилежащо избено помещение.

Сградата ще бъде с асансьор, завършена с висококачествени материали - висок клас PVC дограма, входни врати и външна фасада. На територията на комплекса ще има басейн, зелени площи, достатъчно на брой паркоместа и детска площадка.

Възможност за избор на етаж или друг тип апартамент. Гъвкави схеми на плащане според възможностите на клиента!

Сградата е ситуирана на тихо и съществено комуникативно място с прекрасна гледка към залива, в близост до ресторанти, плаж, магазини и други удобства за живущите в района.

Бяла е един от най-чистите и привлекателни градове по Българското Черноморие, заради екзотичните си плажове, романтичните ресторанти и гледки от всяко място в града, с много добра инфраструктура, чисти улици и поддържани зелени площи, разположен на по-малко от час разстояние от центъра на град Варна и летище, което го прави силно желан избор както за сезонно, така и за целогодишно живеене.

За огледи и запазване на имот, моля обадете се и цитирайте кода на обявата: 12356

Агенция СМЕНИ АДРЕСА предлага и други подобни имоти, с което улеснява избора Ви, съдейства за отпускане на кредити при най-добри условия, извършва обстойна юридическа проверка на имота и изготвя всички необходими документи за сделка.

СМЕНИ АДРЕСА с нас, докато другите все още търсят!
Особености
Тухла
Асансьор
С паркинг
Контрол на достъпа
Саниран
За контакт:
0899707807
Брокер:
Мартин Аргиров
0899707807
Офис: гр. Варна, бул. Сливница 196
Още оферти от брокера: Продава | Дава под наем | Купува | Наема
Агенция:
СМЕНИ АДРЕСА
0898817392
СМЕНИ АДРЕСА logo
В imot.bg от 2024 г.
smeniadresabqla.imot.bg
Адрес:
област Варна, гр. Бяла, Андрей Премянов 52
ИЗПРАТИ ЗАПИТВАНЕ
ИЗПРАТИ ЗАПИТВАНЕТО

Продава 2-СТАЕН
област Варна, гр. Бяла
Обява: 1b177495709705395

70 000 €
136 908.10 лв.
История на цената
(1 000 €, 1 955.83 лв./m2)

Не се начислява ДДС
ЗАПАЗИ ОБЯВАТА

Местоположение: област Варна, гр. Бяла